
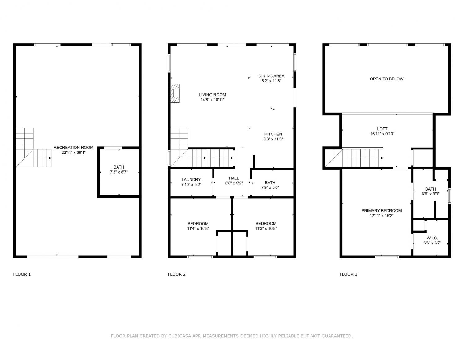
1.13 ACRE RiverFront Living! Mostly furnished & Custom 3BR home w/dock-plus separate 50x65 boat & camper shed! Newly installed composite decking & vaulted ceiling wrap around the waterview deck leading to the home's entry. A wonderful vaulted ceiling anchors the open living area featuring a fireplace & wall of windows-with all the water views! A pretty waterview dining/kitchen area accommodates a breakfast bar, custom cabinetry, granite counters, tile backsplash, & all appliances-w/side door out to the grilling/dining porch. 2 BRs, full BA, & washer/dryer in laundry room complete the main floor. Upstairs is a flexible open loft-roomy enough for an office, bunk room, or den & master BR w/private BA & roomy walk in closet. The heated/cooled garage features a half bath & a large flexible space perfect for gaming, sitting, or bunk area! Ground level covered patio features a perfect place to enjoy the magnificent sunsets as well as a 2nd location for grilling. Lrg covered double carport adds to the plentiful parking & the cargo elevator provides an effortless way to bring in groceries & other household items. Ramp leads to the private floating dock a set of steps down to the beach area are shared with the neighbor as is the well which is located on this 1.13 acre waterfront lot w/197 feet of water frontage overlooking the main channel of the TN River. The extra large boat/camper shed offers plenty of room for extra guests to bring their camper or for your boats & four wheelers/side by sides! Community boat launch next door as well as 2 commercial marinas nearby-located just off Hwy 641 mins from the small TN River towns of Clifton & Bath Springs-between Memphis & Nashville. Ready for a new Family-just bring the kids & the boat!
Status : Active
Source : RealTracs, Inc.
County : Hardin County, TN
Property Type : Residential
Area : 2,465 sq. ft.
Year Built : 2008
Exterior Construction : Vinyl Siding
Floors : Wood,Tile
Heat : Central
HOA / Subdivision : Woodland Point-Phase 1
Listing Provided by : Crye-Leike Tapestry Realty LLC
MLS Status : Active
Listing # : RTC2871807
Schools near 1885 Col James Hardin Dr, Clifton, TN 38425 :
West Hardin Elementary, Hardin County Middle School, Hardin County High School
Association Fee : $50.00
Association Fee Frequency : Annually
Heating : Yes
Water Front : Yes
Parking Features : Attached,Driveway
Lot Size Area : 0.57 Sq. Ft.
Building Area Total : 2465 Sq. Ft.
Lot Size Acres : 0.57 Acres
Lot Size Dimensions : 100.02X264.3X100X262.26
Living Area : 2465 Sq. Ft.
Lot Features : Level,Views
Office Phone : 7318474663
Number of Bedrooms : 3
Number of Bathrooms : 3
Full Bathrooms : 2
Half Bathrooms : 1
Possession : Negotiable
Cooling : 1
Garage Spaces : 1
Patio and Porch Features : Deck,Patio,Porch
Levels : One
Basement : Combination
Stories : 2
Parking Space : 13
Carport : 1
Sewer : Septic Tank
From intersection of Hwy 641 and TN River Bridge at Decatur/Hardin County line, straight 641 S right Nance Bend, right Senator Cobb Rd, left Col James Hardin Dr. property on right at riverfront.
We're ready when you are.
© 2025 Listings courtesy of RealTracs, Inc. as distributed by MLS GRID. IDX information is provided exclusively for consumers' personal non-commercial use and may not be used for any purpose other than to identify prospective properties consumers may be interested in purchasing. The IDX data is deemed reliable but is not guaranteed by MLS GRID and may be subject to an end user license agreement prescribed by the Member Participant's applicable MLS. Based on information submitted to the MLS GRID as of October 22, 2025 10:00 PM CST. All data is obtained from various sources and may not have been verified by broker or MLS GRID. Supplied Open House Information is subject to change without notice. All information should be independently reviewed and verified for accuracy. Properties may or may not be listed by the office/agent presenting the information. Some IDX listings have been excluded from this website.