
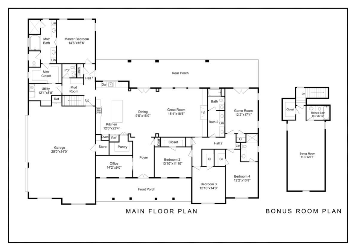
New construction in beautiful Burns, TN! This one-level home with a finished upstairs bonus room offers 3,611 sq ft of heated living space and a layout that really works—split-bedroom plan, dedicated office, oversized pantry, and an open kitchen, living, and dining area that’s great for everyday life and entertaining. The bonus room upstairs gives you extra space for guests, a playroom, or movie nights. Out back, expect a covered deck off the master and ground level patio from the living, views of quiet horse pasture, giving you a peaceful, private feel. Wide front porch and 3 car garage, bringing the total under-roof space to 5,219 sq ft. It feels like you're out in the country, but you're still just 15 minutes from schools, groceries, and everything else in Fairview or Dickson! Buyer/buyers agent to verify all pertinent info. TAXES ARE ESTIMATE. Finishes and completion information subject to change without notice.
Status : Active
County : Dickson County, TN
Property Type : Residential
Area : 3,611 sq. ft.
Year Built : 2025
Exterior Construction : Fiber Cement,Brick
Floors : Wood,Tile
Heat : Central
HOA / Subdivision : TD Equestrian Acres
Listing Provided by : Boxwood Properties, LLC
MLS Status : Active
Listing # : RTC2939453
Schools near 1501 Spencer Mill Rd, Burns, TN 37029 :
Stuart Burns Elementary, Burns Middle School, Dickson County High School
Heating : Yes
Parking Features : Garage Faces Side
Lot Size Area : 1.69 Sq. Ft.
Building Area Total : 3611 Sq. Ft.
Lot Size Acres : 1.69 Acres
Living Area : 3611 Sq. Ft.
Office Phone : 6152975326
Number of Bedrooms : 4
Number of Bathrooms : 5
Full Bathrooms : 4
Half Bathrooms : 1
Possession : Close Of Escrow
Cooling : 1
Garage Spaces : 3
New Construction : 1
Levels : Two
Basement : Crawl Space
Stories : 2
Utilities : Water Available
Parking Space : 3
Sewer : Public Sewer
Exit 182 on 40 East to 96 West, Left on Eastside Rd, Left on Spencer Mill, New Homes on left
We're ready when you are.
© 2025 Listings courtesy of RealTracs, Inc. as distributed by MLS GRID. IDX information is provided exclusively for consumers' personal non-commercial use and may not be used for any purpose other than to identify prospective properties consumers may be interested in purchasing. The IDX data is deemed reliable but is not guaranteed by MLS GRID and may be subject to an end user license agreement prescribed by the Member Participant's applicable MLS. Based on information submitted to the MLS GRID as of October 23, 2025 10:00 AM CST. All data is obtained from various sources and may not have been verified by broker or MLS GRID. Supplied Open House Information is subject to change without notice. All information should be independently reviewed and verified for accuracy. Properties may or may not be listed by the office/agent presenting the information. Some IDX listings have been excluded from this website.