
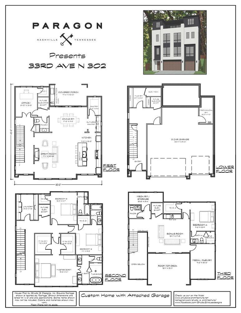
$225,000 price drop for a quick sale! Discover the perfect blend of craftsmanship and modern convenience in this one-of-a-kind new construction, thoughtfully designed for elevated living and effortless entertaining. Spanning multiple levels of expertly curated spaces, this home offers timeless design elements paired with top-tier structural and technological enhancements. Step inside through an Iron Lion steel entry door and experience an open-concept layout anchored by a stunning kitchen outfitted with custom oak cabinetry, a 48” 6-burner range with built-in griddle, and GE Monogram panel column refrigerator and freezer. A spacious butler’s run adds functionality with a paneled undercounter fridge and ice maker, while a massive island makes hosting seamless. Upstairs, the top-floor entertaining level showcases panoramic views from a rooftop deck with tree flooring and steel railing, thoughtfully reinforced to accommodate a future hot tub. This level also includes a full wet bar, a media/flex room, an additional half bath, and a private fourth bedroom suite—an ideal configuration for overnight guests or multifunctional needs. With dual primary closets, a storm-rated concrete shelter, and elevator-ready closets on every floor, every inch has been planned with comfort, safety, and long-term flexibility in mind. Enjoy full spray foam insulation, tankless hot water, a dedicated AV closet with Cat6 wiring throughout, and three separate HVAC systems for zoned climate control. Outside, the fully fenced backyard is pool-ready (seller has a pool plan and a pool builder if you want) and prepped for a future outdoor kitchen with plumbing, gas, and electric already in place. Landscape lighting, an irrigation system, and an oversized driveway with a 3-car garage plus additional 3-car parking pad in the rear of the home off the back yard. This is more than just a home—it’s a showcase of intentional design, ready to support life at every level.
Status : Active
County : Davidson County, TN
Property Type : Residential
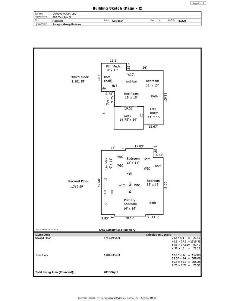
Area : 4,920 sq. ft.
Year Built : 2025
Exterior Construction : Hardboard Siding
Floors : Concrete,Wood,Tile
Heat : Central,Electric
HOA / Subdivision : Sylvan Heights
Listing Provided by : Compass RE
MLS Status : Active
Listing # : RTC2973245
Schools near 302 33rd Ave, N, Nashville, TN 37209 :
Sylvan Park Paideia Design Center, West End Middle School, Hillsboro Comp High School
Heating : Yes
Parking Features : Basement
Lot Size Area : 0.16 Sq. Ft.
Building Area Total : 4920 Sq. Ft.
Lot Size Acres : 0.16 Acres
Lot Size Dimensions : 50 X 140
Living Area : 4920 Sq. Ft.
Office Phone : 6154755616
Number of Bedrooms : 4
Number of Bathrooms : 6
Full Bathrooms : 4
Half Bathrooms : 2
Possession : Close Of Escrow
Cooling : 1
Garage Spaces : 3
New Construction : 1
Levels : Three Or More
Basement : Partial,Finished
Stories : 4
Utilities : Electricity Available,Water Available
Parking Space : 3
Sewer : Public Sewer
West on Charlotte left at 33rd Ave N. to the top of the hill, house on the Right.
We're ready when you are.
© 2025 Listings courtesy of RealTracs, Inc. as distributed by MLS GRID. IDX information is provided exclusively for consumers' personal non-commercial use and may not be used for any purpose other than to identify prospective properties consumers may be interested in purchasing. The IDX data is deemed reliable but is not guaranteed by MLS GRID and may be subject to an end user license agreement prescribed by the Member Participant's applicable MLS. Based on information submitted to the MLS GRID as of October 22, 2025 10:00 AM CST. All data is obtained from various sources and may not have been verified by broker or MLS GRID. Supplied Open House Information is subject to change without notice. All information should be independently reviewed and verified for accuracy. Properties may or may not be listed by the office/agent presenting the information. Some IDX listings have been excluded from this website.