
Step Back in Time to this 100 Year Old Home w/ the Charm of an Older Home and Modern Day Convenience*Rare Opportunity for Move -in Ready/Well Maintained/Beautifully Updated Lockeland Springs Bungalo on Corner Lot* Cut Stone w/ Oversized Front Porch*Detached Original 2 Car Garage w/ Storage that would be Great for Future DADU* Updated Plumbing and Electrical* Dry Basement* Oversized Stone Paver Back Patio with Built in Bench Seating* Primary Suite Upstairs w/ Renovated Bath that Features Separate Whirlpool Tub and Shower w/ Rainhead Faucet* Living Room w/ Fireplace and Custom Built-in Shelving* Updated Kitchen w/ Granite and Open to Den*2 Bedrooms on the Main Level with 1 Full Bath that Features: Updated Walk-in Shower w/ Frameless Glass and Original Hexagon Tile Floors that are in Great Condition w/ NO Cracks!* Windows have been Replaced* Some Original Features including: Pine Hardwood Floors, Some Original Hardware and Doors, Fireplace, Exterior w/ Matching Paint, and Original Butler's Pantry* Property is Being Sold As-Is*First Showings at Open House on 8/24/25 from 2-4 PM*
Status : Active
County : Davidson County, TN
Property Type : Residential
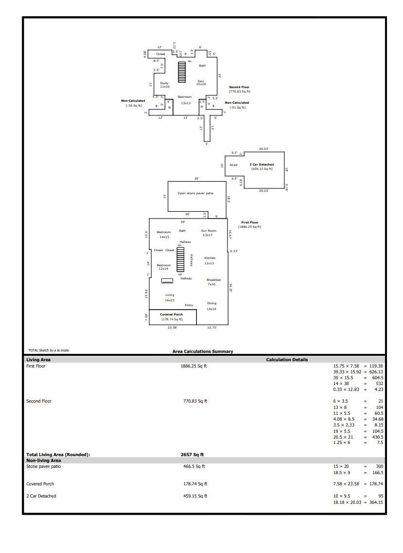
Area : 2,657 sq. ft.
Year Built : 1925
Exterior Construction : Stone
Floors : Wood,Tile
Heat : Central
HOA / Subdivision : Lockeland Springs
Listing Provided by : Brentview Realty Company
MLS Status : Active
Listing # : RTC2975961
Schools near 1501 Stratton Ave, Nashville, TN 37206 :
Warner Elementary Enhanced Option, Stratford STEM Magnet School Lower Campus, Stratford STEM Magnet School Upper Campus
Heating : Yes
Parking Features : Detached,Concrete
Lot Size Area : 0.23 Sq. Ft.
Building Area Total : 2657 Sq. Ft.
Lot Size Acres : 0.23 Acres
Lot Size Dimensions : 65 X 157
Living Area : 2657 Sq. Ft.
Lot Features : Corner Lot
Office Phone : 6153732814
Number of Bedrooms : 3
Number of Bathrooms : 2
Full Bathrooms : 2
Possession : Negotiable
Cooling : 1
Garage Spaces : 2
Architectural Style : Cottage
Patio and Porch Features : Porch,Covered,Patio
Levels : Two
Basement : Full
Stories : 2
Utilities : Electricity Available,Water Available
Parking Space : 2
Sewer : Public Sewer
From I-24 West toward Clarksville/Louisville, Take Exit 49 towards Nissan Stadium/Korean Vets Blvd * Keep Left onto S Fourth St * Turn Right onto Shelby Ave * Turn Left onto S 14th St * Turn Right onto Stratton Avenue * Home is on the Left Corner Lot
We're ready when you are.
© 2025 Listings courtesy of RealTracs, Inc. as distributed by MLS GRID. IDX information is provided exclusively for consumers' personal non-commercial use and may not be used for any purpose other than to identify prospective properties consumers may be interested in purchasing. The IDX data is deemed reliable but is not guaranteed by MLS GRID and may be subject to an end user license agreement prescribed by the Member Participant's applicable MLS. Based on information submitted to the MLS GRID as of October 23, 2025 10:00 AM CST. All data is obtained from various sources and may not have been verified by broker or MLS GRID. Supplied Open House Information is subject to change without notice. All information should be independently reviewed and verified for accuracy. Properties may or may not be listed by the office/agent presenting the information. Some IDX listings have been excluded from this website.