
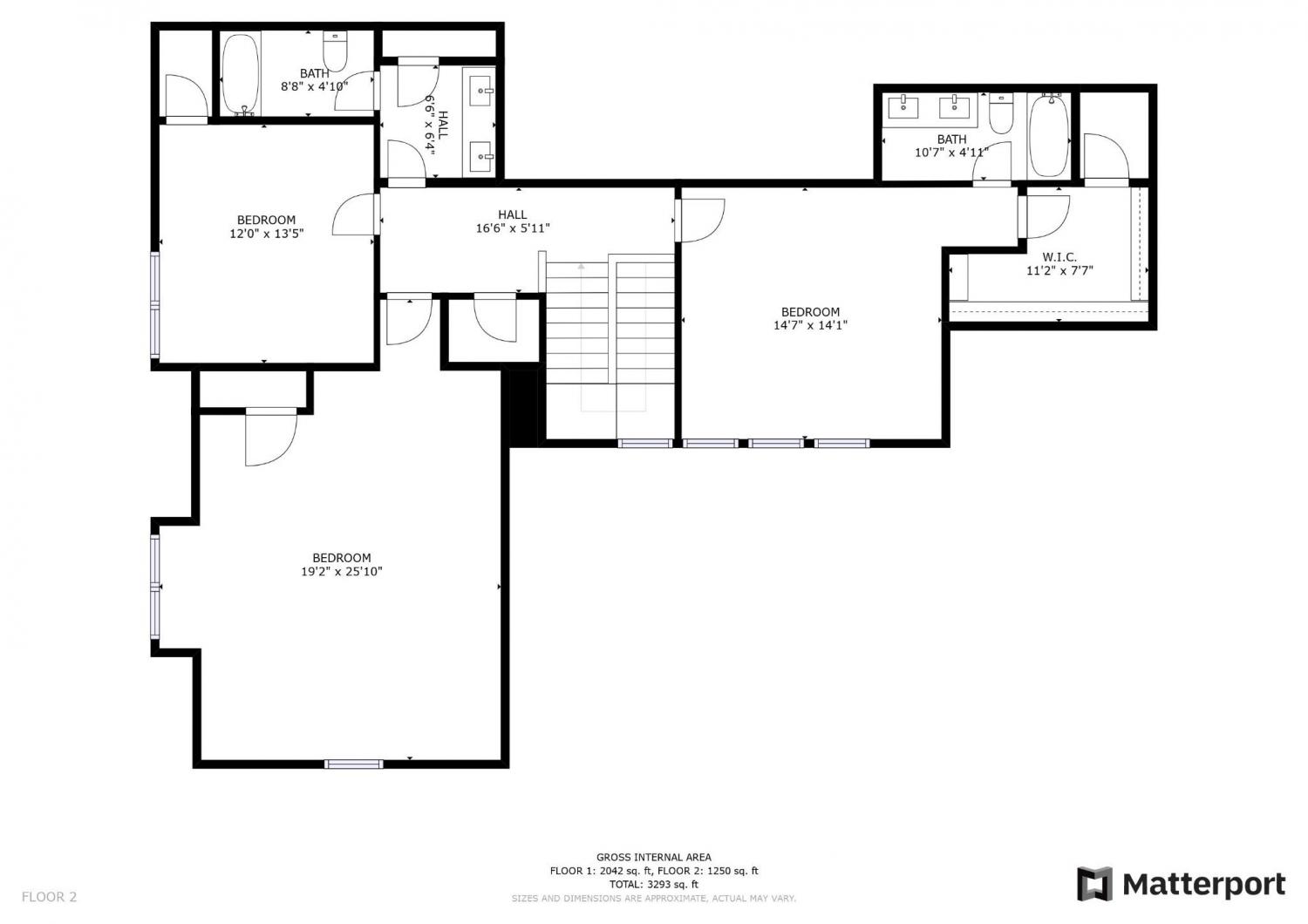
Crown Harbor. This Model Home is located Approx 2 Miles from 1-24 and is less than a 30 minute drive to downtown Chattanooga. Some Interior photos are of a recently completed home with same floor plan. This home has 2 bedrooms on the main . 2 Bedrooms on the second floor with 2 full baths and a spacious bonus room. 3 car garage. There is no carpet in this home which makes it ideal for lake front living. The 36x 13.6 covered porch will have a summer kitchen built in and will be finished with Moisture Shield Decking. An additional lakeview patio with Stone firepit will be constructed by Early Spring. The kitchen is complete with double ovens, and Kitchen Aid Appliances. Owner / Agent / Builder - Contact a local professional to tour this location as well as other customized homes that we have available.
Status : Active
County : Marion County, TN
Property Type : Residential
Area : 3,272 sq. ft.
Year Built : 2024
Exterior Construction : Brick,Fiber Cement
Floors : Laminate
Heat : Central,Heat Pump,Propane
HOA / Subdivision : Crown Harbor
Listing Provided by : Benchmark Realty, LLC
MLS Status : Active
Listing # : RTC2979118
Schools near 140 Edgewater Way, Jasper, TN 37347 :
Jasper Elementary School, Jasper Middle School, Marion Co High School
Association Fee : $1,500.00
Association Fee Frequency : Annually
Heating : Yes
Water Front : Yes
Parking Features : Garage Faces Side
Lot Size Area : 0.35 Sq. Ft.
Building Area Total : 3272 Sq. Ft.
Lot Size Acres : 0.35 Acres
Living Area : 3272 Sq. Ft.
Lot Features : Corner Lot,Level,Views
Office Phone : 6154322919
Number of Bedrooms : 4
Number of Bathrooms : 4
Full Bathrooms : 4
Possession : Close Of Escrow
Cooling : 1
Garage Spaces : 3
Architectural Style : Traditional
New Construction : 1
Patio and Porch Features : Porch,Covered,Patio,Screened
Levels : Two
Basement : None,Crawl Space
Stories : 2
Utilities : Electricity Available,Water Available
Parking Space : 3
Sewer : Private Sewer
I -24 East Toward Chattanooga. Take Exit 158 and turn Right on TVA Dam Rd. Travel 2 miles and turn left at the Crown Harbor Entrance
We're ready when you are.
© 2025 Listings courtesy of RealTracs, Inc. as distributed by MLS GRID. IDX information is provided exclusively for consumers' personal non-commercial use and may not be used for any purpose other than to identify prospective properties consumers may be interested in purchasing. The IDX data is deemed reliable but is not guaranteed by MLS GRID and may be subject to an end user license agreement prescribed by the Member Participant's applicable MLS. Based on information submitted to the MLS GRID as of October 14, 2025 10:00 AM CST. All data is obtained from various sources and may not have been verified by broker or MLS GRID. Supplied Open House Information is subject to change without notice. All information should be independently reviewed and verified for accuracy. Properties may or may not be listed by the office/agent presenting the information. Some IDX listings have been excluded from this website.