
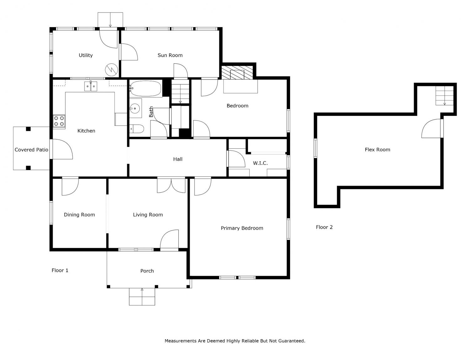
Lovely early 1900's remodeled cottage in the heart of Auburntown. 2 bdrm, 1 bath, 1,600 sqft with a sunroom, large utility room and awesome flex space upstairs. Hardwood floors throughout with tile in the wet areas and lots of original charm in every room. Fresh, neutral paint, original fireplace and tons of natural light. New windows, new HVAC, new hot water heater, new kitchen appliances, real sand and finish hardwood floors. Front and side porches, metal roof, pear tree and rock retaining wall. Come see this adorable home in the charming community of Auburntown. More description with individual photos. Don't miss the walk through video and 3D interactive tour... you will not be disappointed. See you soon. ***BUYERS PLEASE NOTE***: The front portion of this property is in a high risk flood plain. FEMA flood policy quoted at $3,700 annually. Property has never flooded. Creek is across the street and behind other structures. Private insurers denied it, so FEMA is the only option for flood insurance. Flood insurance is required unless you are a cash only Buyer.
Status : Active
Address : 112 Re Davenport Ave Auburntown TN 37016
County : Cannon County, TN
Property Type : Residential
Area : 1,542 sq. ft.
Yard : Partial
Year Built : 1922
Exterior Construction : Vinyl Siding
Floors : Wood,Tile
Heat : Central,Electric
HOA / Subdivision : walk to downtown Auburntown, TN
Listing Provided by : simpliHOM - The Results Team
MLS Status : Active
Listing # : RTC2979425
Schools near 112 Re Davenport Ave, Auburntown, TN 37016 :
Cannon North Elementary School, Cannon County Middle School, Cannon County High School
Virtual Tour URL : Click here for Virtual Tour
Heating : Yes
Lot Size Area : 0.25 Sq. Ft.
Building Area Total : 1542 Sq. Ft.
Lot Size Acres : 0.25 Acres
Lot Size Dimensions : 99X113
Living Area : 1542 Sq. Ft.
Lot Features : Cleared,Level,Rolling Slope
Office Phone : 6152703111
Number of Bedrooms : No
Number of Bathrooms : 1
Full Bathrooms : 1
Possession : Close Of Escrow
Cooling : 1
Architectural Style : Cottage
Patio and Porch Features : Porch,Covered
Levels : One
Basement : Crawl Space
Stories : 2
Utilities : Electricity Available,Water Available
Sewer : Septic Tank
GPS location: 112 Re Davenport Ave, Auburntown, TN 37016. From Murfreesboro, take Hwy. 96 through Lascassas 17 miles to Auburntown. R onto Re Davenport Ave. Home will be 0.3 mi on the L.
We're ready when you are.
© 2025 Listings courtesy of RealTracs, Inc. as distributed by MLS GRID. IDX information is provided exclusively for consumers' personal non-commercial use and may not be used for any purpose other than to identify prospective properties consumers may be interested in purchasing. The IDX data is deemed reliable but is not guaranteed by MLS GRID and may be subject to an end user license agreement prescribed by the Member Participant's applicable MLS. Based on information submitted to the MLS GRID as of October 16, 2025 10:00 PM CST. All data is obtained from various sources and may not have been verified by broker or MLS GRID. Supplied Open House Information is subject to change without notice. All information should be independently reviewed and verified for accuracy. Properties may or may not be listed by the office/agent presenting the information. Some IDX listings have been excluded from this website.