
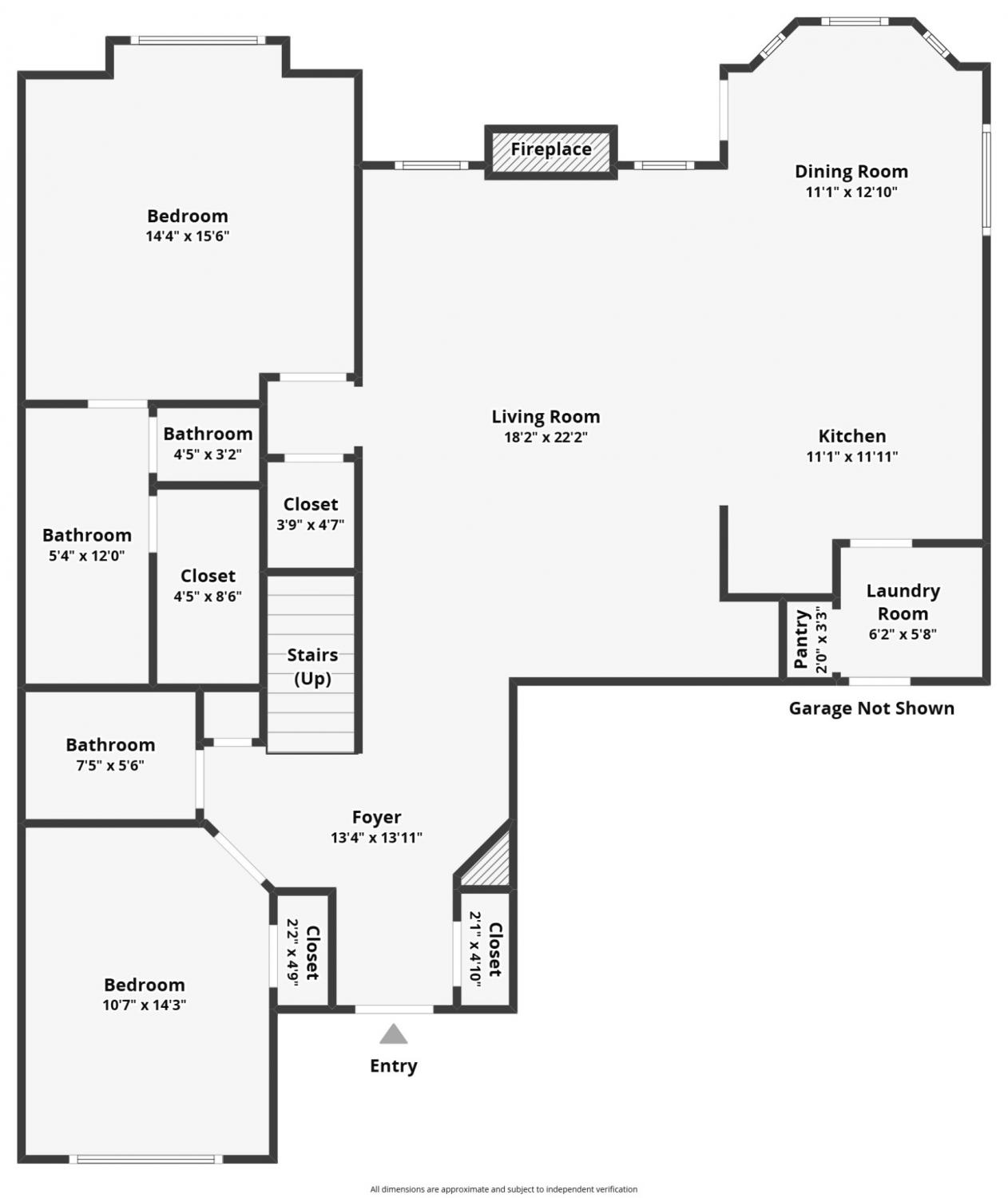
Welcome to a Gem of a Townhome, Immaculate and Well-Kept by Original Owner. Located in Twin Creeks Village and Resort, a Gated Community on Tim's Ford Lake in Winchester, Tennessee. This Unique Townhome Boasts 5 Bedrooms and a Spacious Feel Throughout, with TWO Bedrooms and TWO Full Bathrooms on the Main Level! Extra Privacy and Space on this Lot, with a Beautiful Pond to the Side, with Additional Guest Parking Right Around The Corner! Primary Bedroom has a Walk-in Closet. En-Suite with Fully Tiled Shower and Double Vanities, and Water Closet. Second Bedroom is Next to a Hallway Full Bathroom with Tiled Tub/Shower. Quartz Countertops in Kitchen with Gas Cooktop and Stainless Steel Appliances. Dining Area with Bay Windows and a Door to a Screened-In Porch and the Backyard with Patio, Perfect for Relaxing in the Sun. The Large Living Room has Extended Space for an Additional Dining Area or Study Nook. Enjoy the Gas Fireplace with Plenty of Natural Light. Laundry Room with Pantry Closet Lead to a Large 2 Car Garage. Upstairs, to the Left of the Stairs, Bedroom 3 is Spacious and has an Oversized Closet. Then, to the Right of the Stairs, a Full Hallway Bathroom with Tiled Tub/Shower and Granite Vanity. Bedroom 4 fits Two Large Full Size Bunk Beds and a Third Bed, with Closet, Bedroom 4 can also be used as a Bonus Room! Bedroom 5/ Craft Room has a closet as well. HOA cuts the grass and HOA Dues include exterior maintenance, landscaping maintenance including cutting the grass, access to all 3 Community Pools, and exterior insurance. With 3 Community Pools, and Twin Creeks Marina, Twin Creeks Village and Resort is the Best Carefree Lake Life Place To Be! Minutes to Downtown Winchester, Enjoy a Movie and Choose from Many Restaurants and Shops. Close to Franklin (74 miles), Murfreesboro (58 miles), Nashville (89 miles), and Chattanooga (70 miles), Winchester is a Convenient Destination! Several Golf Courses in Winchester as well. Come Tour the Lake Life Today!
Status : Active
Address : 103 Anderton Dr Winchester TN 37398
County : Franklin County, TN
Property Type : Residential
Area : 2,160 sq. ft.
Yard : Back Yard
Year Built : 2018
Exterior Construction : Fiber Cement,Stone
Floors : Carpet,Wood,Tile
Heat : Central
HOA / Subdivision : Twin Creeks Village
Listing Provided by : Benchmark Realty, LLC
MLS Status : Active
Listing # : RTC2981955
Schools near 103 Anderton Dr, Winchester, TN 37398 :
Clark Memorial School, North Middle School, Franklin Co High School
Association Fee : $275.00
Association Fee Frequency : Monthly
Assocation Fee 2 : $900.00
Association Fee 2 Frequency : One Time
Heating : Yes
Parking Features : Attached
Lot Size Area : 0.04 Sq. Ft.
Building Area Total : 2160 Sq. Ft.
Lot Size Acres : 0.04 Acres
Lot Size Dimensions : 20.27 X45.50
Living Area : 2160 Sq. Ft.
Lot Features : Corner Lot,Private,Views
Common Interest : Condominium
Property Attached : Yes
Office Phone : 6153711544
Number of Bedrooms : 5
Number of Bathrooms : 3
Full Bathrooms : 3
Possession : Negotiable
Cooling : 1
Garage Spaces : 2
Levels : Two
Basement : None
Stories : 2
Utilities : Water Available
Parking Space : 2
Sewer : Public Sewer
From the blue clubhouse main gate, turn Right onto Anderton and home is on the left.
We're ready when you are.
© 2025 Listings courtesy of RealTracs, Inc. as distributed by MLS GRID. IDX information is provided exclusively for consumers' personal non-commercial use and may not be used for any purpose other than to identify prospective properties consumers may be interested in purchasing. The IDX data is deemed reliable but is not guaranteed by MLS GRID and may be subject to an end user license agreement prescribed by the Member Participant's applicable MLS. Based on information submitted to the MLS GRID as of October 22, 2025 10:00 PM CST. All data is obtained from various sources and may not have been verified by broker or MLS GRID. Supplied Open House Information is subject to change without notice. All information should be independently reviewed and verified for accuracy. Properties may or may not be listed by the office/agent presenting the information. Some IDX listings have been excluded from this website.