
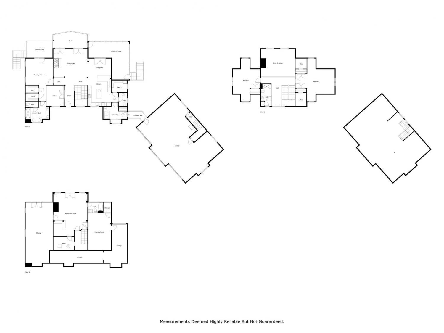
Welcome to 392 Tunnie Point, a beautifully crafted heavy timber-frame mountain home nestled on more than three private acres at the end of a quiet cul-de-sac within the sought-after Fredonia Mountain Nature Resort. Thoughtfully designed with both elegance and comfort in mind, this residence offers three bedrooms, an office, 3.5 baths, an oversized three-car garage, and a finished basement—providing plenty of space for both everyday living and entertaining. Step inside to a spacious living room centered around a floor-to-ceiling stone wood-burning fireplace, which flows seamlessly into the dining area and a stunning kitchen with private access to the oversized screened porch—perfect for morning coffee or evening relaxation. The kitchen is equipped with stainless steel appliances, a wall oven and microwave, ample wood accents, and thoughtful finishes that make it as functional as it is inviting. A full laundry room with a sink and custom cabinetry adds everyday convenience. The primary suite is a true retreat, featuring dual closets and access to a covered porch overlooking the backyard. The luxurious primary bath is designed for indulgence, with heated floors, dual vanities, extensive cabinetry, a soaking tub, and a double rain shower. Additional bedrooms are well-appointed, and each bath throughout the home is finished with quality and style. Beyond the home, Fredonia Mountain Nature Resort offers unmatched natural beauty and community amenities, including miles of walking, horseback riding, and UTV trails, along with lakes, waterfalls, and picnic areas. For outdoor enthusiasts, this property is more than a home—it's a lifestyle of serenity, adventure, and connection to nature. 392 Tunnie Point is a rare opportunity to own a private retreat in a gated community that celebrates the outdoors while offering the comforts of a finely crafted home.
Status : Active
County : Sequatchie County, TN
Property Type : Residential
Area : 3,478 sq. ft.
Year Built : 2011
Exterior Construction : Stone,Other
Floors : Carpet,Wood,Tile
Heat : Central,Electric
HOA / Subdivision : Greenfields West
Listing Provided by : Greater Downtown Realty dba Keller Williams Realty
MLS Status : Active
Listing # : RTC2992443
Schools near 392 Tunnie Point, Dunlap, TN 37327 :
Griffith Elementary, Sequatchie Co Middle School, Sequatchie Co High School
Association Fee : $1,275.00
Association Fee Frequency : Annually
Heating : Yes
Parking Features : Garage Faces Front,Driveway
Lot Size Area : 3.27 Sq. Ft.
Building Area Total : 3478 Sq. Ft.
Lot Size Acres : 3.27 Acres
Lot Size Dimensions : 3.27 acres
Living Area : 3478 Sq. Ft.
Lot Features : Wooded,Views,Cul-De-Sac
Office Phone : 4236641900
Number of Bedrooms : 3
Number of Bathrooms : 4
Full Bathrooms : 3
Half Bathrooms : 1
Possession : Close Of Escrow
Cooling : 1
Garage Spaces : 3
Patio and Porch Features : Deck,Covered,Patio,Porch,Screened
Levels : Three Or More
Basement : Full,Finished
Stories : 2
Utilities : Electricity Available,Water Available
Parking Space : 3
Sewer : Septic Tank
From Chattanooga: I-24 W to US 27 N towards Dunlap, keep left on SR-111 N toward Dunlap, Turn left onto Tram Trail, turn right onto Fredonia Rd, turn left onto John Henry Lewis Rd, turn right onto Tunnie Pt.
We're ready when you are.
© 2025 Listings courtesy of RealTracs, Inc. as distributed by MLS GRID. IDX information is provided exclusively for consumers' personal non-commercial use and may not be used for any purpose other than to identify prospective properties consumers may be interested in purchasing. The IDX data is deemed reliable but is not guaranteed by MLS GRID and may be subject to an end user license agreement prescribed by the Member Participant's applicable MLS. Based on information submitted to the MLS GRID as of October 16, 2025 10:00 AM CST. All data is obtained from various sources and may not have been verified by broker or MLS GRID. Supplied Open House Information is subject to change without notice. All information should be independently reviewed and verified for accuracy. Properties may or may not be listed by the office/agent presenting the information. Some IDX listings have been excluded from this website.