
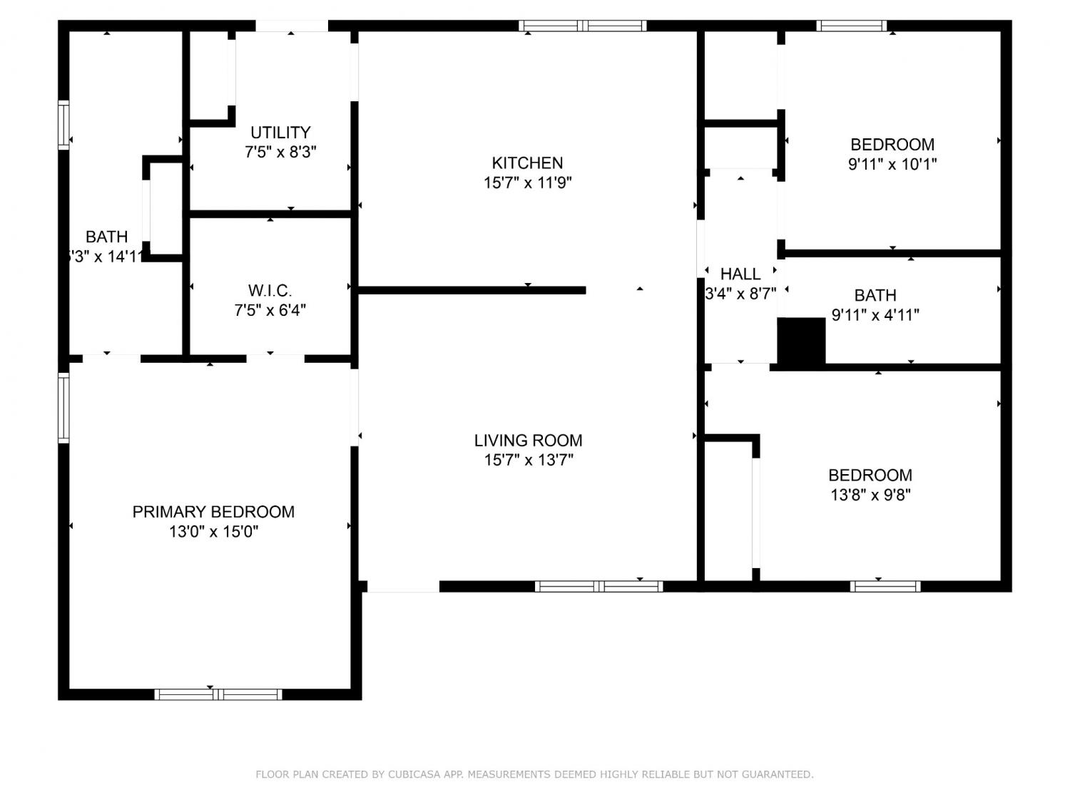
Welcome to this 3-bedroom, 2-bath home built in 2020, sitting on a peaceful 0.4-acre lot with mature trees—no city taxes but still close to town! With 1,258 sq ft of living space, it’s the perfect mix of modern comfort and laid-back lake-life vibes—without the lakefront price tag. Inside, you’ll find durable LVP flooring in the main areas, cozy carpet in the bedrooms, and easy-to-clean vinyl in the bathrooms and laundry. The living room connects to the kitchen and dining area, making it comfortable for everyday living. Step outside to enjoy a covered front porch and a spacious back deck surrounded by trees. Tucked away on a quiet dead-end street, this home feels like a getaway while still being just 15 minutes from both downtown Smithville and Hidden Harbor Marina on Center Hill Lake. Whether you’re looking for a weekend retreat or a move-in ready full-time spot, this home offers the yard, space, and setting that makes it an easy yes. Schedule your showing today!!
Status : Active
Address : 385 Talpha Dr Dowelltown TN 37059
County : Dekalb County, TN
Property Type : Residential
Area : 1,258 sq. ft.
Year Built : 2020
Exterior Construction : Vinyl Siding
Floors : Carpet,Vinyl
Heat : Natural Gas
HOA / Subdivision : Ridgeview Acres Section 2
Listing Provided by : Town & Lake Realty, Inc.
MLS Status : Active
Listing # : RTC2994381
Schools near 385 Talpha Dr, Dowelltown, TN 37059 :
Smithville Elementary, DeKalb Middle School, De Kalb County High School
Heating : Yes
Lot Size Area : 0.41 Sq. Ft.
Building Area Total : 1258 Sq. Ft.
Lot Size Acres : 0.41 Acres
Lot Size Dimensions : 159 X 207 IRR
Living Area : 1258 Sq. Ft.
Office Phone : 6152157653
Number of Bedrooms : 3
Number of Bathrooms : 2
Full Bathrooms : 2
Possession : Close Of Escrow
Cooling : 1
Levels : One
Basement : Crawl Space
Stories : 1
Utilities : Natural Gas Available,Water Available
Sewer : Septic Tank
FROM HWY US-70 W/W BROAD ST. TURN LEFT ONTO OLD SNOW HILL RD, TURN LEFT ONTO MOORE LN, TURN LEFT ONTO TALPHA, 385 TALPHA IS ON THE LEFT. LOOK FOR THE SIGN.
We're ready when you are.
© 2025 Listings courtesy of RealTracs, Inc. as distributed by MLS GRID. IDX information is provided exclusively for consumers' personal non-commercial use and may not be used for any purpose other than to identify prospective properties consumers may be interested in purchasing. The IDX data is deemed reliable but is not guaranteed by MLS GRID and may be subject to an end user license agreement prescribed by the Member Participant's applicable MLS. Based on information submitted to the MLS GRID as of October 22, 2025 10:00 AM CST. All data is obtained from various sources and may not have been verified by broker or MLS GRID. Supplied Open House Information is subject to change without notice. All information should be independently reviewed and verified for accuracy. Properties may or may not be listed by the office/agent presenting the information. Some IDX listings have been excluded from this website.