
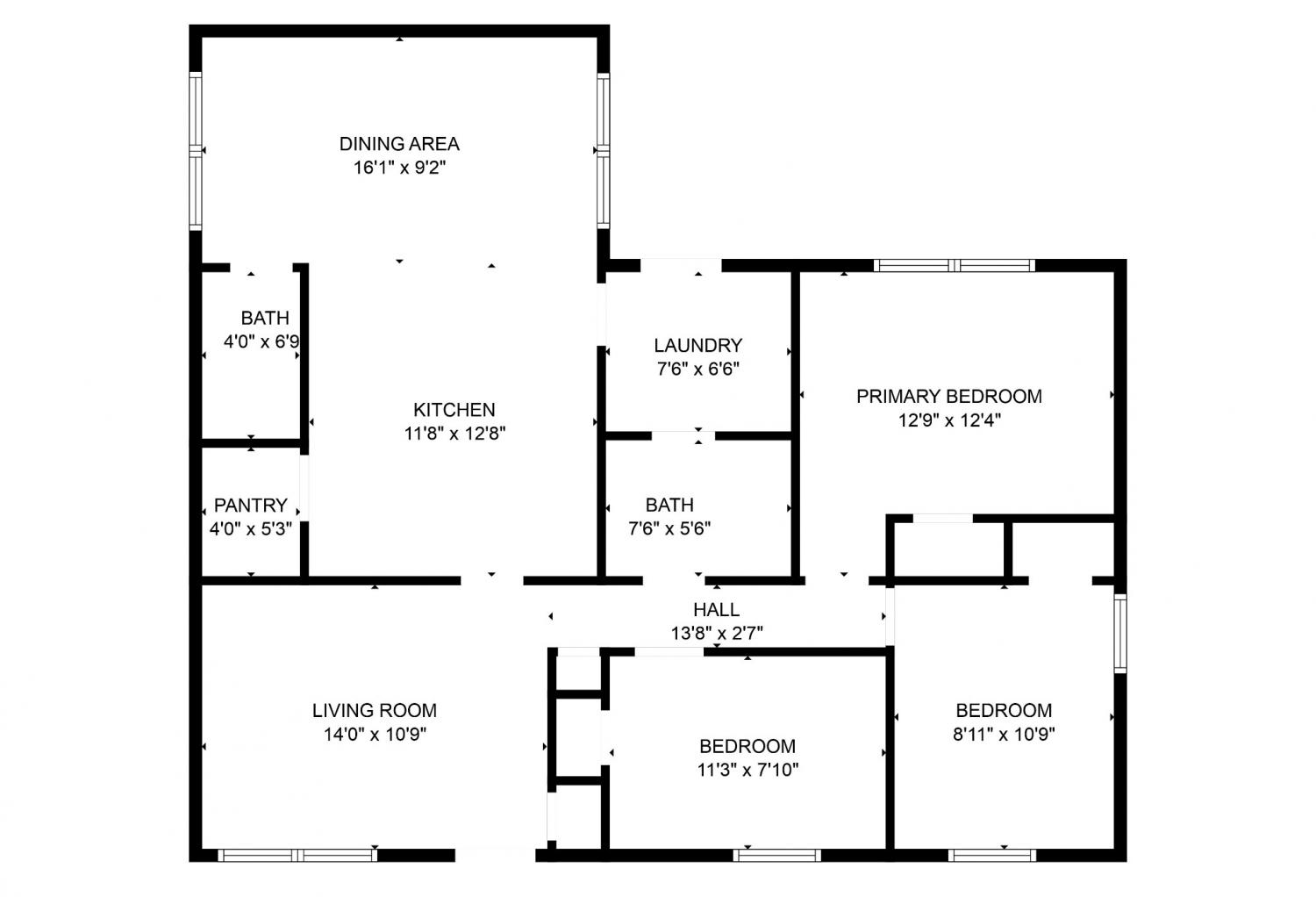
Adorable Updated Home in the Heart of Hendersonville! This charming one-level 3-bedroom, 2-bath home is the perfect starter or downsizer’s dream. Thoughtfully updated with modern touches, it offers both comfort and peace of mind. Step inside to find stylish LVP flooring flowing throughout, a bright kitchen with granite countertops, and a newly added second full bathroom that makes daily living a breeze. Major upgrades have already been taken care of, including a newer HVAC system, tankless water heater, and an encapsulated crawlspace. Relax on your welcoming front deck or enjoy the private backyard. Oversized storage shed for additional storage will remain. Great location- just minutes to Hendersonville’s shopping, dining, parks, hospital, and top rated schools. With quick access to 386 or I-65 it's a simple commute into Nashville. Move-in ready and full of charm—don’t miss out on this rare find. This home is ready to start its next chapter with you!
Status : Active
Address : 119 Cline Ave Hendersonville TN 37075
County : Sumner County, TN
Property Type : Residential
Area : 1,222 sq. ft.
Year Built : 1967
Exterior Construction : Brick,Vinyl Siding
Floors : Laminate,Tile
Heat : Central,Electric
HOA / Subdivision : Oakvale Sec 1
Listing Provided by : Benchmark Realty, LLC
MLS Status : Active
Listing # : RTC2994426
Schools near 119 Cline Ave, Hendersonville, TN 37075 :
George A Whitten Elementary, Knox Doss Middle School at Drakes Creek, Beech Sr High School
Heating : Yes
Lot Size Area : 0.18 Sq. Ft.
Building Area Total : 1222 Sq. Ft.
Lot Size Acres : 0.18 Acres
Lot Size Dimensions : 60 X 125
Living Area : 1222 Sq. Ft.
Office Phone : 6159914949
Number of Bedrooms : 3
Number of Bathrooms : 2
Full Bathrooms : 2
Possession : Negotiable
Cooling : 1
Levels : One
Basement : Crawl Space
Stories : 1
Utilities : Electricity Available,Water Available
Parking Space : 4
Sewer : Public Sewer
From Nashville: Follow I-40W/I-65N. Take the exit for TN-386 Vietnam Veterans Blvd. Take exit 6 and turn right onto New Shackle Island Rd. Left on Old Shackle Island Rd. Left on Cole Dr. Left on Cline Ave. The property will be on the left.
We're ready when you are.
© 2025 Listings courtesy of RealTracs, Inc. as distributed by MLS GRID. IDX information is provided exclusively for consumers' personal non-commercial use and may not be used for any purpose other than to identify prospective properties consumers may be interested in purchasing. The IDX data is deemed reliable but is not guaranteed by MLS GRID and may be subject to an end user license agreement prescribed by the Member Participant's applicable MLS. Based on information submitted to the MLS GRID as of October 15, 2025 10:00 AM CST. All data is obtained from various sources and may not have been verified by broker or MLS GRID. Supplied Open House Information is subject to change without notice. All information should be independently reviewed and verified for accuracy. Properties may or may not be listed by the office/agent presenting the information. Some IDX listings have been excluded from this website.