
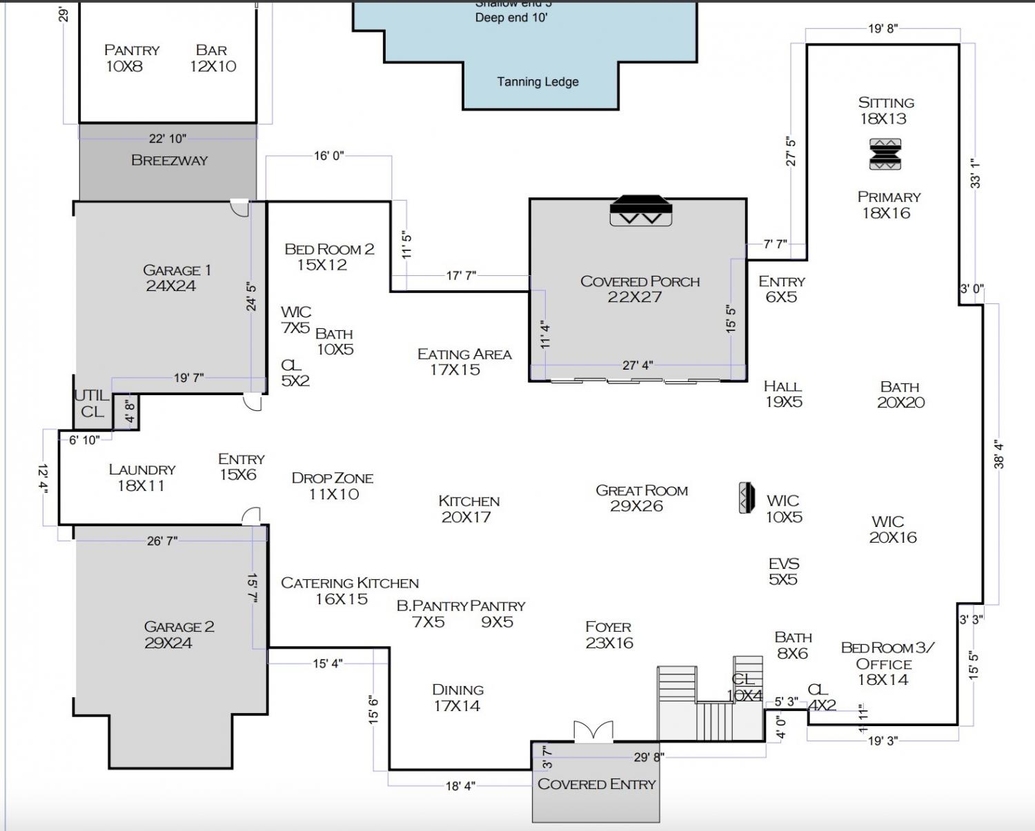
Set on 2 private acres, this resort style Craftsman Residential home built by Rogers Build is designed for both refined entertaining and the ease of everyday life. The chef’s kitchen showcases a handmade Lacanche range from France, SubZero refrigeration columns, dual sinks with dishwashers, and a marble-clad wine bar. The great room’s dramatic pocketing slider extends to an outdoor living room, complete with one of five fireplaces overlooking the Ozone pool while calming water features can be heard from inside. A separate 793 sqft pool house overlooking the Ozone pool featuring an indoor/outdoor bar with a full bath, kitchenette, and laundry serves guests perfectly or can be built out as a wellness/ fitness studio complete with an extra large 10' x 8' storage closet that can easily be converted to built-in sauna (see floorplans). Third floor SF represents the first floor conditioned space of the Pool House. The pool house can be built upon to create a larger space within the expansive 2 acre lot if desired. Retreat to the main-level primary suite with its dual-sided fireplace, light-filled sitting room, spa bath with heated floors, dual water closets, 24' ceiling, and an expansive two-room dressing closet. Additional spaces include an office, guest suite, gym, media/kids’ den, and dual laundry rooms. Ft. - 7” White Oak Floors, Custom Panel White Oak Cabinetry w SubZero appliances, Designer fixtures from Visual Comfort, Arteriors, Currey & Co, Dual room dressing closet features additional 10 x 6 primary closet space to customize, True 4 car garage w guest parking, Upgraded HVAC Air Filtration in First Floor Main Unit with Nest Smart-Home Thermostats in all areas, Additional unfinished attic space for additional 425 sq ft (see floorplans), Butler’s Kitchen includes additional Fridge/ Freezer, sink, dishwasher, and custom cabinetry. Plenty of space for additional cooktop and oven/ wall oven, Elevator Hoistlift w 2 stop chase, heated radiant flooring in primary bath
Status : Active
County : Davidson County, TN
Property Type : Residential
Area : 10,702 sq. ft.
Yard : Back Yard
Year Built : 2023
Exterior Construction : Stone,Wood Siding
Floors : Wood,Marble,Tile
Heat : Central
HOA / Subdivision : Laurelwood
Listing Provided by : Compass RE
MLS Status : Active
Listing # : RTC2998550
Schools near 1809 Old Hickory Blvd, Brentwood, TN 37027 :
Percy Priest Elementary, John Trotwood Moore Middle, Hillsboro Comp High School
Heating : Yes
Parking Features : Garage Faces Side,Parking Pad,Paved
Lot Size Area : No
Building Area Total : 10702 Sq. Ft.
Lot Size Acres : No
Lot Size Dimensions : 253 X 360
Living Area : 10702 Sq. Ft.
Lot Features : Level,Private
Office Phone : 6154755616
Number of Bedrooms : 6
Number of Bathrooms : 9
Full Bathrooms : 7
Half Bathrooms : 2
Possession : Negotiable
Cooling : 1
Garage Spaces : 4
Architectural Style : Contemporary
Patio and Porch Features : Patio,Covered,Porch,Screened
Levels : Three Or More
Basement : Crawl Space
Stories : 2
Utilities : Water Available
Parking Space : 13
Sewer : Public Sewer
Take I-65 S to exit 74A, merge onto Old Hickory Blvd, continue for 3.5 miles. The home will be on the left.
We're ready when you are.
© 2025 Listings courtesy of RealTracs, Inc. as distributed by MLS GRID. IDX information is provided exclusively for consumers' personal non-commercial use and may not be used for any purpose other than to identify prospective properties consumers may be interested in purchasing. The IDX data is deemed reliable but is not guaranteed by MLS GRID and may be subject to an end user license agreement prescribed by the Member Participant's applicable MLS. Based on information submitted to the MLS GRID as of October 21, 2025 10:00 PM CST. All data is obtained from various sources and may not have been verified by broker or MLS GRID. Supplied Open House Information is subject to change without notice. All information should be independently reviewed and verified for accuracy. Properties may or may not be listed by the office/agent presenting the information. Some IDX listings have been excluded from this website.