
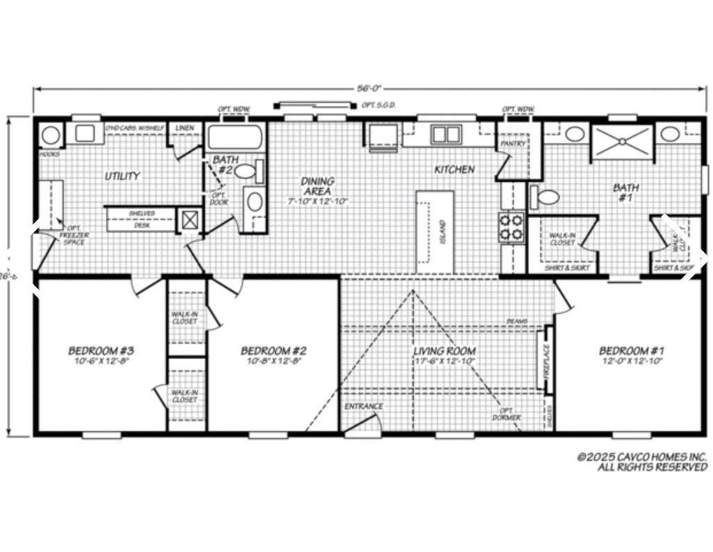
Nice 3 Bed/ 2 Bath 1493 sq ft manufactured home on 5.01 acres in a country setting. Walk in the front door and get greeted by a built-in electric fireplace in the living room. From there straight ahead look at the large island and all the natural light coming in window above the kitchen sink. The kitchen boasts a pantry, stainless appliances, and an eat-in area. Home also has a large utility room with a coat closet. The large primary bedroom has an ensuite featuring a Dumawall shower, double vanity, and his and her closets. Bedrooms 2 & 3 feature ample space and walk-in closets as well. This home features all the Fleetwood Lafayette standards 2x6 exterior walls, 40-21-22 insulation package, Architectural Shingles, Low-E windows, Full-Finish Drywall, LED lighting throughout. Come make this never lived in home yours today. If you use GPS to access property it may bring you in via Rocky Mound Rd, note this way has a narrow roads and a good size hill to cross and is not the recommended way to enter the property, recommended access from Oakdale Rd.
Status : Active
Address : 2192 Shrum Cemetery Rd Westmoreland TN 37186
County : Macon County, TN
Property Type : Residential
Area : 1,493 sq. ft.
Year Built : 2025
Exterior Construction : Vinyl Siding
Floors : Carpet,Laminate
Heat : Central
HOA / Subdivision : William Carter
Listing Provided by : Carter Realty LLC
MLS Status : Active
Listing # : RTC3002192
Schools near 2192 Shrum Cemetery Rd, Westmoreland, TN 37186 :
Westside Elementary, Macon County Junior High School, Macon County High School
Heating : Yes
Parking Features : Aggregate
Lot Size Area : 5.01 Sq. Ft.
Building Area Total : 1493 Sq. Ft.
Lot Size Acres : 5.01 Acres
Living Area : 1493 Sq. Ft.
Office Phone : 6156662104
Number of Bedrooms : 3
Number of Bathrooms : 2
Full Bathrooms : 2
Possession : Close Of Escrow
Cooling : 1
Architectural Style : Ranch
Patio and Porch Features : Porch
Levels : One
Basement : None,Crawl Space
Stories : 1
Utilities : Water Available
Parking Space : 2
Sewer : Septic Tank
From Carter Realty LLC head west on Hwy 52 and in 6.3 miles turn Right onto Oakdale Rd, in 0.3 miles take slight Left onto Cross Lanes RD, in 0.2 miles turn Left onto Shrum Cemetery Rd and in 2.1 miles the Homesite will be on the right. Sign in yard
We're ready when you are.
© 2025 Listings courtesy of RealTracs, Inc. as distributed by MLS GRID. IDX information is provided exclusively for consumers' personal non-commercial use and may not be used for any purpose other than to identify prospective properties consumers may be interested in purchasing. The IDX data is deemed reliable but is not guaranteed by MLS GRID and may be subject to an end user license agreement prescribed by the Member Participant's applicable MLS. Based on information submitted to the MLS GRID as of October 13, 2025 10:00 PM CST. All data is obtained from various sources and may not have been verified by broker or MLS GRID. Supplied Open House Information is subject to change without notice. All information should be independently reviewed and verified for accuracy. Properties may or may not be listed by the office/agent presenting the information. Some IDX listings have been excluded from this website.