
Your home search stops here! Updated, all brick home located on a dead end, quiet street. Tree lined lot in a convenient location with easy access to major road ways. One level living with large bonus room and floored storage up. A double sided gas fireplace separates the vaulted living room and dining room areas, oak kitchen cabinets with deep drawers and large single basin sink, oak cabinets in utility room with double door pantry closet, new vinyl plank flooring in main living areas and new carpet in bedrooms and bonus room. Primary bath with separate tub & shower, walk-in closet. Spacious two car, side entry garage with individual doors and separate pedestrian door. Concrete driveway and back patio, mature shade trees. Fresh, neutral paint throughout, open and bright, natural light. NO HOA! Come see...you won't be disappointed. Selling AS IS, Buyer inspections welcomed. Virtually walk through the house here: https://www.zillow.com/view-imx/94185859-dcb5-46aa-8204-be8b1966f06e?setAttribution=mls&wl=true&initialViewType=pano&utm_source=dashboard
Status : Active
County : Cannon County, TN
Property Type : Residential
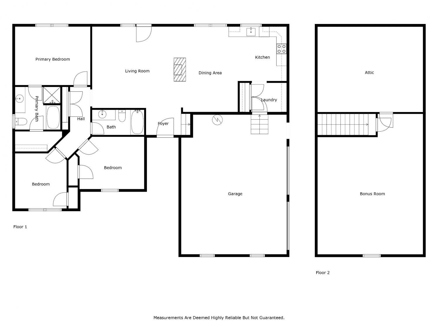
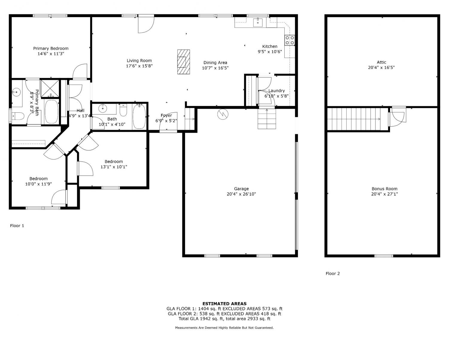
Area : 1,942 sq. ft.
Year Built : 2007
Exterior Construction : Brick
Floors : Carpet,Vinyl
Heat : Central,Electric
HOA / Subdivision : Fair Oaks
Listing Provided by : simpliHOM - The Results Team
MLS Status : Active
Listing # : RTC3007325
Schools near 55 Fair Oak Ln, Woodbury, TN 37190 :
Cannon County Elementary School, Cannon County Middle School, Cannon County High School
Heating : Yes
Parking Features : Garage Door Opener,Garage Faces Side
Lot Size Area : 0.57 Sq. Ft.
Building Area Total : 1942 Sq. Ft.
Lot Size Acres : 0.57 Acres
Living Area : 1942 Sq. Ft.
Lot Features : Level
Office Phone : 6152703111
Number of Bedrooms : 3
Number of Bathrooms : 2
Full Bathrooms : 2
Possession : Close Of Escrow
Cooling : 1
Garage Spaces : 2
Architectural Style : Traditional
Patio and Porch Features : Patio
Levels : Two
Basement : None,Crawl Space
Stories : 2
Utilities : Electricity Available,Water Available,Cable Connected
Parking Space : 2
Sewer : Septic Tank
From downtown Woodbury, take McMinnville Hwy 5.6 mi to R on Center Hill Rd. In 600 ft L onto Old McMinnville Hwy then in 700 ft another L onto Fair Oak Ln. Home will be 350 ft on the L. 30 mins to Murfreesboro & Center Hill Lake, 1 hour to BNA.
We're ready when you are.
© 2025 Listings courtesy of RealTracs, Inc. as distributed by MLS GRID. IDX information is provided exclusively for consumers' personal non-commercial use and may not be used for any purpose other than to identify prospective properties consumers may be interested in purchasing. The IDX data is deemed reliable but is not guaranteed by MLS GRID and may be subject to an end user license agreement prescribed by the Member Participant's applicable MLS. Based on information submitted to the MLS GRID as of October 22, 2025 10:00 AM CST. All data is obtained from various sources and may not have been verified by broker or MLS GRID. Supplied Open House Information is subject to change without notice. All information should be independently reviewed and verified for accuracy. Properties may or may not be listed by the office/agent presenting the information. Some IDX listings have been excluded from this website.