
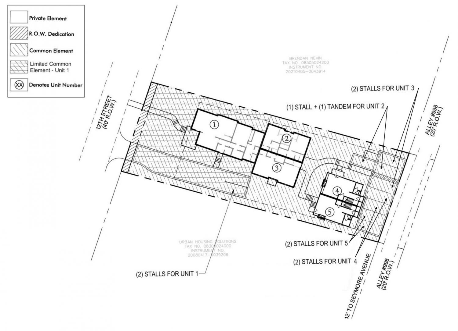
Welcome to Eastwood Cottages – a boutique cottage court community in the heart of East Nashville’s historic Eastwood neighborhood offering low-maintenance living and built-in neighborly charm. This efficiently designed 2-bedroom, 1-1/2 bath home offers 920 sq ft of smart, stylish living space that make it an ideal choice for first-time home buyers, investors, or anyone seeking low-maintenance living with high-end quality. Despite it's compact footprint, this home lives large with open living space, custom finishes, and two dedicated off-street parking spots. Enjoy elevated touches like white oak hardwood floors, spray foam insulation, encapsulated crawlspace, mahogany doors, custom cabinetry, gas appliances, and curated designer finishes by award winning interior designer Marcelle Guilbeau. The community includes a shared green space and dog park, and is within walking distance to Hill Center Greenwood, Publix, Starbucks, and many of East Nashville’s favorite restaurants and shops. Priced in the $400's, this home offers exceptional value in a walkable, prime East Nashville location, and only 3 miles to downtown. Buy both D & E, live in one, and offer the other home as an owner occupied STR, short term, mid term, or long term rental property. Preferred lender is offering 1% towards a rate buy down or closing costs. Assigned alley parking in the rear off Seymour Ave. No parking in the driveway on N 12th as this belongs to the front A unit.
Status : Active
County : Davidson County, TN
Property Type : Residential
Area : 920 sq. ft.
Yard : Privacy
Year Built : 2025
Exterior Construction : Hardboard Siding,Brick
Floors : Wood
Heat : Heat Pump,Natural Gas
HOA / Subdivision : Eastwood Cottages
Listing Provided by : The Sapphire Group Real Estate
MLS Status : Active
Listing # : RTC3012096
Schools near 905 N 12th St, Nashville, TN 37206 :
Rosebank Elementary, East Nashville Magnet Middle, East Nashville Magnet High School
Association Fee : $50.00
Association Fee Frequency : Monthly
Heating : Yes
Parking Features : Alley Access,Assigned,Parking Pad
Lot Size Area : 0.01 Sq. Ft.
Building Area Total : 920 Sq. Ft.
Lot Size Acres : 0.01 Acres
Living Area : 920 Sq. Ft.
Lot Features : Level
Common Interest : Condominium
Property Attached : Yes
Office Phone : 6155510818
Number of Bedrooms : No
Number of Bathrooms : 2
Full Bathrooms : 1
Half Bathrooms : 1
Possession : Close Of Escrow
Cooling : 1
Architectural Style : Contemporary
New Construction : 1
Patio and Porch Features : Porch
Levels : Two
Basement : Crawl Space
Stories : 2
Utilities : Electricity Available,Natural Gas Available,Water Available
Parking Space : 2
Sewer : Public Sewer
From downtown, go east on Charlotte Ave to US Hwy 41/US Hwy 31/Hwy 11, which turns into Main St. Continue onto Gallatin Ave. Take a right on Seymour Ave. Go past N 12th, and turn left in the alley behind 905 N 12th St. Homes are in the rear off the alley.
We're ready when you are.
© 2025 Listings courtesy of RealTracs, Inc. as distributed by MLS GRID. IDX information is provided exclusively for consumers' personal non-commercial use and may not be used for any purpose other than to identify prospective properties consumers may be interested in purchasing. The IDX data is deemed reliable but is not guaranteed by MLS GRID and may be subject to an end user license agreement prescribed by the Member Participant's applicable MLS. Based on information submitted to the MLS GRID as of October 23, 2025 10:00 AM CST. All data is obtained from various sources and may not have been verified by broker or MLS GRID. Supplied Open House Information is subject to change without notice. All information should be independently reviewed and verified for accuracy. Properties may or may not be listed by the office/agent presenting the information. Some IDX listings have been excluded from this website.