
Experience the perfect blend of comfort, beauty, and lakefront living at this stunning, well maintained 4-bedroom, 3-bath home with waterfront views of Old Hickory Lake. Situated in a peaceful setting with breathtaking water views, this home offers the ultimate retreat just minutes from Nashville. It has an open and inviting layout filled with natural light and scenic lake views. The spacious main level includes the kitchen, comfortable living area, 3 bedrooms and 2 full baths, and access to a large deck overlooking the water. It's the ideal space to watch the sunrise or unwind at sunset. The walk-out basement provides incredible flexibility, featuring a full bedroom, bathroom, and living space that can easily serve as a mother-in-law suite, guest quarters, or private office. Don't miss out on this opportunity to live on Old Hickory Lake at an affordable price in the charming town of Old Hickory! Walkable to Dose coffee shop & Old Hickory Pizza and Pub. No HOA. Boat dock permit is available! See the video tour at http://www.youtube.com/embed/5FBVICgR858?rel=0
Status : Active
Address : 803B Riverside Rd Old Hickory TN 37138
County : Davidson County, TN
Property Type : Residential
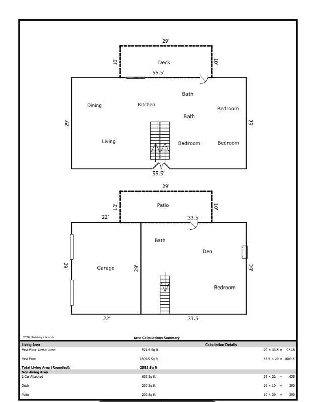
Area : 2,610 sq. ft.
Year Built : 1970
Exterior Construction : Brick
Floors : Tile,Vinyl
Heat : Central,Electric
HOA / Subdivision : Village Of Old Hickory
Listing Provided by : Compass
MLS Status : Active
Listing # : RTC3018012
Schools near 803B Riverside Rd, Old Hickory, TN 37138 :
DuPont Elementary, DuPont Hadley Middle, McGavock Comp High School
Virtual Tour URL : Click here for Virtual Tour
Heating : Yes
Water Front : Yes
Parking Features : Attached
Lot Size Area : 0.51 Sq. Ft.
Building Area Total : 2610 Sq. Ft.
Lot Size Acres : 0.51 Acres
Lot Size Dimensions : 62 X 135
Living Area : 2610 Sq. Ft.
Lot Features : Sloped,Views
Office Phone : 6158245920
Number of Bedrooms : 4
Number of Bathrooms : 3
Full Bathrooms : 3
Possession : Close Of Escrow
Cooling : 1
Garage Spaces : 2
Patio and Porch Features : Deck,Patio
Levels : One
Basement : Finished
Stories : 2
Utilities : Electricity Available,Water Available
Parking Space : 4
Sewer : Public Sewer
I-65 N from Nashville take Exit 92 Old Hickory Blvd and turn right, Continue on Old Hickory Blvd towards Madison, Turn L on Donelson Ave, turn right on Hadley Ave, then left on 8th to Riverside Road , look for 803 on the left side
We're ready when you are.
© 2025 Listings courtesy of RealTracs, Inc. as distributed by MLS GRID. IDX information is provided exclusively for consumers' personal non-commercial use and may not be used for any purpose other than to identify prospective properties consumers may be interested in purchasing. The IDX data is deemed reliable but is not guaranteed by MLS GRID and may be subject to an end user license agreement prescribed by the Member Participant's applicable MLS. Based on information submitted to the MLS GRID as of October 19, 2025 10:00 PM CST. All data is obtained from various sources and may not have been verified by broker or MLS GRID. Supplied Open House Information is subject to change without notice. All information should be independently reviewed and verified for accuracy. Properties may or may not be listed by the office/agent presenting the information. Some IDX listings have been excluded from this website.