
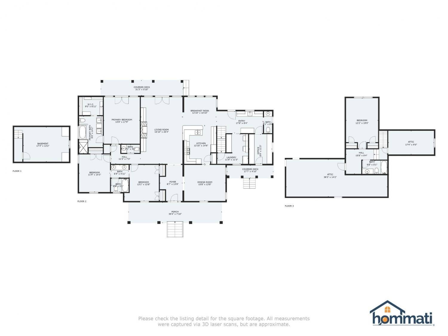
Welcome to private paradise of 90 acres convenient to Webb School. Huge 40x60 detached shop/garage with 200 amp service, gas heater , 13' 6" door and two 20ft wide lean-to's. Mixture of woods and pasture. Water frontage on Clem Creek. Custom built home by original owner, 3 bedroom, 3 full baths, 2 half baths, 9 ft ceilings, home office, tons of kitchen space. Spot for a personal baseball field for the family with backstop still in place! Over 500 sq ft of potential expandable space in the attic. Solid concrete walls in basement offer a safe place during storms. Encapsulated crawl space. See additional feature sheet for more features! Please make an appointment with an agent to see. Be sure to view the virtual tour and aerial tour.
Status : Active
Address : 500 Old Pencil Mill Rd Chapel Hill TN 37034
County : Bedford County, TN
Property Type : Residential
Area : 3,301 sq. ft.
Year Built : 2006
Exterior Construction : Vinyl Siding
Floors : Wood
Heat : Central
HOA / Subdivision : none
Listing Provided by : Crye-Leike, Inc., REALTORS
MLS Status : Active
Listing # : RTC3030577
Schools near 500 Old Pencil Mill Rd, Chapel Hill, TN 37034 :
Community Elementary School, Community Middle School, Community High School
Heating : Yes
Parking Features : Attached/Detached
Lot Size Area : 90.43 Sq. Ft.
Building Area Total : 3301 Sq. Ft.
Lot Size Acres : 90.43 Acres
Living Area : 3301 Sq. Ft.
Lot Features : Level
Office Phone : 6158959518
Number of Bedrooms : 3
Number of Bathrooms : 5
Full Bathrooms : 3
Half Bathrooms : 2
Possession : Close Of Escrow
Cooling : 1
Garage Spaces : 8
Patio and Porch Features : Deck,Covered,Porch
Levels : Three Or More
Basement : Finished
Stories : 2
Utilities : Water Available
Parking Space : 14
Sewer : Septic Tank
Heading S on US Hwy 41A N, turn Right onto Unionville Chapel Hill Rd and make immediate left on Hall Mill Rd, Right Old Pencil Mill Rd,
We're ready when you are.
© 2025 Listings courtesy of RealTracs, Inc. as distributed by MLS GRID. IDX information is provided exclusively for consumers' personal non-commercial use and may not be used for any purpose other than to identify prospective properties consumers may be interested in purchasing. The IDX data is deemed reliable but is not guaranteed by MLS GRID and may be subject to an end user license agreement prescribed by the Member Participant's applicable MLS. Based on information submitted to the MLS GRID as of October 22, 2025 10:00 PM CST. All data is obtained from various sources and may not have been verified by broker or MLS GRID. Supplied Open House Information is subject to change without notice. All information should be independently reviewed and verified for accuracy. Properties may or may not be listed by the office/agent presenting the information. Some IDX listings have been excluded from this website.