
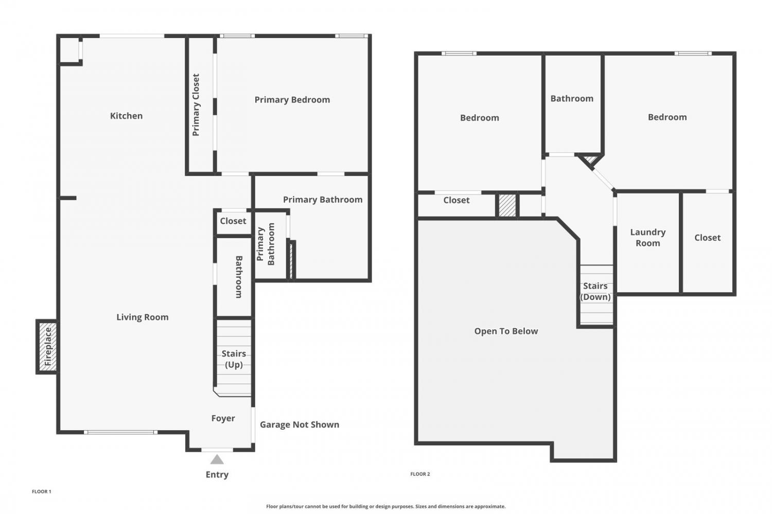
Up to 1% lender credit on the loan amount when buyer uses Seller's Preferred Lender. Don’t miss this spacious end-unit townhome just steps from Percy Priest Lake! The inviting living room features vaulted ceilings, elegant molding, and a cozy gas fireplace, flowing into the dining area with plenty of natural light. The main-level primary suite provides comfort and privacy, while hardwood floors add warmth to the main living spaces. Enjoy outdoor living with a covered front porch and a private fenced patio that offers both space and seclusion. With its end-unit location and convenient access to the airport, Briley Parkway, interstates, and the lake, this home blends privacy with easy living.
Status : Active
County : Davidson County, TN
Property Type : Residential
Area : 1,570 sq. ft.
Yard : Back Yard
Year Built : 2000
Exterior Construction : Brick,Vinyl Siding
Floors : Carpet,Wood,Tile
Heat : Central,Natural Gas
HOA / Subdivision : Watercrest
Listing Provided by : The Ashton Real Estate Group of RE/MAX Advantage
MLS Status : Active
Listing # : RTC3031475
Schools near 3405 Old Anderson Rd, Antioch, TN 37013 :
Smith Springs Elementary School, John F. Kennedy Middle, Antioch High School
Virtual Tour URL : Click here for Virtual Tour
Association Fee : $203.00
Association Fee Frequency : Monthly
Heating : Yes
Parking Features : Garage Door Opener,Garage Faces Front
Lot Size Area : 0.03 Sq. Ft.
Building Area Total : 1570 Sq. Ft.
Lot Size Acres : 0.03 Acres
Living Area : 1570 Sq. Ft.
Common Interest : Condominium
Property Attached : Yes
Office Phone : 6153011631
Number of Bedrooms : 3
Number of Bathrooms : 3
Full Bathrooms : 2
Half Bathrooms : 1
Possession : Close Of Escrow
Cooling : 1
Garage Spaces : 1
Architectural Style : Traditional
Patio and Porch Features : Porch,Covered,Patio
Levels : One
Basement : None
Stories : 2
Utilities : Electricity Available,Natural Gas Available,Water Available
Parking Space : 1
Sewer : Public Sewer
I-40 East to Stewart's Ferry Exit, Left on Smith Springs Rd, Right on Anderson Rd, Left on Old Anderson Rd. Turn Right into Watercrest and drive straight. Unit 231 is toward the back of the community and is the end-unit townhome on the left.
We're ready when you are.
© 2025 Listings courtesy of RealTracs, Inc. as distributed by MLS GRID. IDX information is provided exclusively for consumers' personal non-commercial use and may not be used for any purpose other than to identify prospective properties consumers may be interested in purchasing. The IDX data is deemed reliable but is not guaranteed by MLS GRID and may be subject to an end user license agreement prescribed by the Member Participant's applicable MLS. Based on information submitted to the MLS GRID as of October 21, 2025 10:00 PM CST. All data is obtained from various sources and may not have been verified by broker or MLS GRID. Supplied Open House Information is subject to change without notice. All information should be independently reviewed and verified for accuracy. Properties may or may not be listed by the office/agent presenting the information. Some IDX listings have been excluded from this website.