MIDDLE TENNESSEE REAL ESTATE MIDDLE TENNESSEE REAL ESTATE
1106 Brook Court KY 42134 For Sale -
1106 Brook Court KY 42134 For Sale - 1
1106 Brook Court KY 42134 For Sale - 2
1106 Brook Court KY 42134 For Sale - 3
1106 Brook Court KY 42134 For Sale - 4

1106 Brook Court, Franklin, KY 42134 For Sale

Single Family Residence

$262,900

  • Single Family Residence
  • Beds: 3
  • Baths: 2
  • 1,308 sq ft

Description

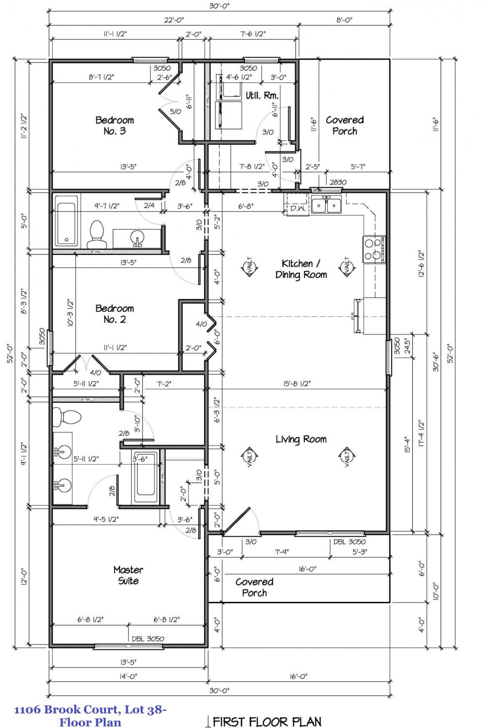
Welcome to 1106 Brook Ct., a new-construction home in Franklin’s upcoming Westbrook Subdivision! This home features 3 bedrooms, 2full bathrooms, and an open concept living room and kitchen/dining area perfect for everyday living or hosting friends and family. The spacious primary bedroom includes a large bathroom with a double vanity and a walk-in closet. Covered front and back porches keep you clear of the rain and provide areas for relaxing outdoors. With granite countertops and modern finishes throughout, this home promises style, comfort, and functionality. Located less than an hour north of Nashville, TN, close to Franklin schools, shopping, dining, and more, this is an opportunity you don’t want to miss! Lender Incentives available. $6,000 Seller Incentive available. Call today to learn more.

Property Details

  • Status : Active

  • Address : 1106 Brook Court Franklin KY 42134

  • County : Simpson County, KY

  • Property Type : Residential

  • Area : 1,308 sq. ft.

  • Year Built : 2025

  • Exterior Construction : Vinyl Siding

  • Floors : Other,Vinyl

  • Heat : Heat Pump

  • HOA / Subdivision : Westbrook Subdivision

  • Listing Provided by : Coldwell Banker, The Advantage REALTOR Group

  • MLS Status : Active

  • Listing # : RTC3072494

  • Schools near 1106 Brook Court, Franklin, KY 42134 :

  • Franklin Elementary School, Franklin-Simpson Middle School, Franklin-Simpson High School

Additional details

  • Association Fee : $300.00

  • Association Fee Frequency : Annually

  • Heating : Yes

  • Parking Features : Concrete,Driveway

  • Lot Size Area : 0.21 Sq. Ft.

  • Building Area Total : 1308 Sq. Ft.

  • Lot Size Acres : 0.21 Acres

  • Living Area : 1308 Sq. Ft.

  • Lot Features : Level

  • Office Phone : 2705860912

  • Number of Bedrooms : 3

  • Number of Bathrooms : 2

  • Full Bathrooms : 2

  • Possession : Close Of Escrow

  • Cooling : 1

  • Architectural Style : Cottage

  • New Construction : 1

  • Patio and Porch Features : Patio,Covered,Porch

  • Levels : One

  • Basement : None

  • Stories : 1

  • Utilities : Electricity Available,Water Available

  • Sewer : Public Sewer

Virtual Tour

Location 1106 Brook Court, KY 42134

Directions to 1106 Brook Court, KY 42134

From Franklin, KY- Go south on Main Street/31-W 1 block from Franklin square to right onto West Madison. Right into Westbrook on Easton Street to left onto Brook Court. House is the 4th home on the right.

Ready to Start the Conversation?

We're ready when you are.

© 2026 Listings courtesy of RealTracs, Inc. as distributed by MLS GRID. IDX information is provided exclusively for consumers' personal non-commercial use and may not be used for any purpose other than to identify prospective properties consumers may be interested in purchasing. The IDX data is deemed reliable but is not guaranteed by MLS GRID and may be subject to an end user license agreement prescribed by the Member Participant's applicable MLS. Based on information submitted to the MLS GRID as of March 1, 2026 10:00 AM CST. All data is obtained from various sources and may not have been verified by broker or MLS GRID. Supplied Open House Information is subject to change without notice. All information should be independently reviewed and verified for accuracy. Properties may or may not be listed by the office/agent presenting the information. Some IDX listings have been excluded from this website.